工程概況:污水處理廠中水回用工程,設計規模6.5萬m3/d,總投資5937萬元。再生水工程建設的主要內容是再生水提升泵站,輸水管道長13.46公里。

該項目由兩部分組成:1)為發電公司提供冷區水源,管道主要沿現有(計劃)道路鋪設,通過發電公司工廠五一路鋪設供水管道,通往各大城市,供城市園林綠化、道路清潔和廁所清潔用。該項目建成后,年可有效利用中水約2100萬噸。
項目示范意義:再生水利用可有效緩解區域缺水與水污染,更好地降低水環境污染,實現中水資源化。以再生水為水源的景觀水體補充模式將成為城市缺水景觀水體補充的主要模式。
工藝/設備名稱:水池回水輔助送水泵房,采用變頻單級雙吸離心泵供水。管道采用PCCP管和球墨鑄鐵管連接,滿足長期使用要求。
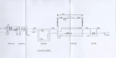
工藝/裝備流程圖

項目亮點
執行效果:該項目主要用于鍋爐冷卻用水,降低導致冷卻裝置在水中結垢的水中硬度,去除會導致裝置腐蝕和生物污垢的氨氮等污染物,確保用水單位正常生產。該工程使用了大量電氣自動化設備和儀表,自動化程度高,主要有變壓器各種類型的斷路器,軟啟動器,變頻器等,能很好地起到節能降耗的作用。
社會效益:經濟快速發展伴隨著環境保護和資源利用的沉重成本。要走可持續發展的經濟道路,就必須大力提倡和發展節能減排和環保的環保工作。再生水的使用,有效地緩解了區域缺水和水環境污染,極大地緩解了水資源短缺問題,具有很大的社會效益。
生態效益:隨著再生水廠的完成,每年可生產2000多萬噸再生水。屆時,中心城市的主要河流可以告別水污染。

                公司電話:400-058-1098
公司傳真:0512-82175780
公司郵箱:service@anfengtech.com
                    公司地址:蘇州工業園區唯文路8號D棟